
Introducción al periodo de Isin-Larsa
Tras la caída del Imperio de la Tercera Dinastía de Ur (al final del III milenio a.C.), termina la Edad del Bronce Antiguo. El periodo cronológico y cultural que le sigue ahora, conocido como periodo de Isin-Larsa, es el de las dinastías de Isin (2017-1794 a.C.) y Larsa (2025-1763 a.C.), contemporáneas entre sí, y pertenecientes a las culturas de la Edad del Bronce Medio. Sus primeras décadas de Historia se solapa con el final del Bronce Antiguo porque ésta, al igual que todas las transiciones en épocas históricas, es un cambio lento y progresivo que se va produciendo tras años y décadas. Como decía cuando estudiábamos la Historia ágrafa, no es que un día se duerman siendo del Bronce Antiguo y al despertarse ya sean del Bronce Medio.

La transición dinástica al periodo de Isin-Larsa
A pesar de que la historiografía moderna señala que el paso de la Tercera Dinastía de Ur al periodo de Isin-Larsa se llevó a cabo mediante grandes cambios, sus contemporáneos no lo vivieron así, sino todo lo contrario, lo vivieron como una continuidad que no trajo grandes novedades en sus vidas. Desde el punto de vista histórico, estos grandes cambios son evidentes: la desintegración política y territorial de un imperio, el cambio lingüístico que se produjo, marginando el lenguaje sumerio, la alteración de la composición de la demografía, como ya vimos en la entrada anterior con la incorporación de los amorritas, etc.
¿Por qué entonces los ciudadanos no lo percibieron así, como una época de grandes innovaciones? Pues porque, sobre todo por parte de los reyes de la dinastía de Isin, intentaron imponer un efecto ideológico de continuidad, al declararse los herederos culturales de los reyes de Ur. De este modo, los reyes de Isin asumieron los títulos y pretensiones de los reyes de Ur, apareciendo incluso en las listas reales como sus directos e indiscutibles sucesores.

La evolución de las ciudades en el periodo Isin-Larsa
A nivel demográfico
Lo primero que tienes que comprender acerca de esta cuestión es lo complicado que es estudiarla, dada la dificultad para distinguir este tipo de cosas en el registro arqueológico y epigráfico. Al menos hasta ahora se puede señalar como una certeza el desplazamiento de los centros de gravedad de la Baja Mesopotamia. Esto se traduce en que, mientras algunas ciudades, como Larsa o Babilonia, experimentan un gran crecimiento, otras tantas, como Umma, Lagash o Kish, asisten a una gran decadencia. Sin embargo, esto no significa que el modelo demográfico cambie, ya que los niveles de población y la relación entre ciudades y aldeas sigue estable.
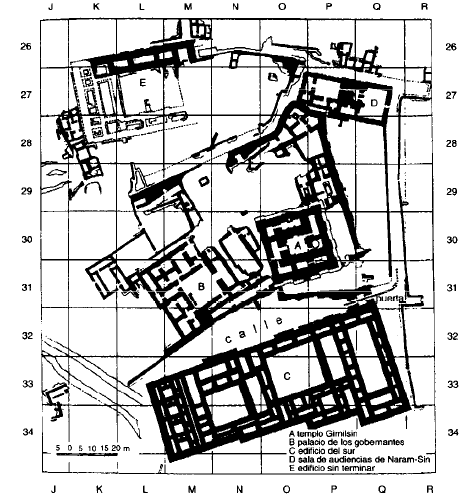
A nivel urbanístico
Durante este periodo, los reyes siguen llevando a cabo intensas actividades de construcción de edificios y obras diversas, como murallas, palacios, templos y sistemas de canales de irrigación. Incluso podríamos decir que hay un aumento del interés por construir con respecto al periodo neosumerio. En cuanto a la arquitectura de los edificios, hay una clara continuidad en la forma de construirlos y decorarlos, tanto en los templos como en los palacios o las viviendas familiares normales.

A nivel político
Como vimos durante las últimas entradas anteriores, el control sobre las ciudades del imperio de Ur había decaído durante el reinado de Ibbi-Sin, el último rey de la Tercera Dinastía de Ur. Como consecuencia, a partir de este momento y durante el periodo de Isin-Larsa proliferan las ciudades con autonomía política. Esto desemboca en las obvias luchas por la hegemonía entre seis grandes centros: Isin, Larsa, Uruk, Babilonia, Eshnunna, y Der.
Por otro lado, las ciudades periféricas que habían sido conquistadas en cierta manera por el imperio de Ur para ser las guardianas de sus fronteras (Susa al este, Assur al norte y Mari al noroeste) se consolidan como potencias políticas independientes pero influyentes en la Baja Mesopotamia. Grosso modo, este es el sistema político que va a imperar en la Baja Mesopotamia durante este periodo de Isin-Larsa, entre la caída del Imperio de Ur (finales del s. XXI a.C.) y el ascenso hegemónico de Babilonia (siglo XVIII a.C.).

A nivel administrativo
La principal organización administrativa de las ciudades es el palacio, coincidente también con la mayor estructura arquitectónica. Las tareas de construcción o ampliación de los palacios reales no cuentan con el mismo énfasis en la propaganda con la que contaban en el periodo anterior, pero ahora son más innovadoras. A nivel arqueológico, los palacios mejor conocidos son los de Sin-Kashid (Uruk), Nur-Adad (Larsa) y Tell Asmar (Eshnunna).

Eso no significa que no haya templos que cuenten casi con las mismas dimensiones, y que conserven sus funciones administrativas. La diferencia es que los templos ahora no están subordinados a un poder central, como pasaba durante el periodo de los reyes de Ur. Las grandes áreas sagradas de las ciudades de Ur o Nippur conservan su majestuosidad, a pesar de que a nivel político ya no tengan la importancia de antes. En el caso de Ur, han visto como han perdido para siempre su predominio político, mientras que, en el caso de Nippur, observan como nunca van a tener la importancia religiosa del periodo de Akkad o del Imperio de Ur. Y claro, como es evidente, mientras unos centros religiosos decaen, otros se alzan, como los de la ciudad de Larsa, Sippar o Babilonia.

Bibliografía
ASCALONE, E. (2006): Mesopotamia. Random House Mondadori, Barcelona.
LIVERANI, M. (2014): El antiguo Oriente. Historia, sociedad, economía. Crítica, Barcelona.
SANMARTÍN, J.; SERRANO, J.M. (1998): Historia antigua del Próximo Oriente. Mesopotamia y Egipto. Akal, Madrid.
WAGNER, C.G. (1999): Historia del Cercano Oriente. Universidad de Salamanca, Salamanca.